PrinsARCH
banner image
STANFORD, WESTERN CAPE

Workshop | Shed Brandt

SHED BRANDT

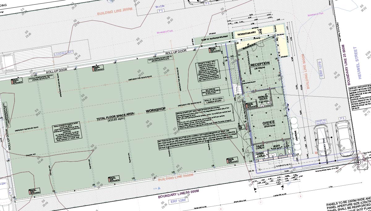
Workshop

This 35m x 15m workshop is located in Stanford’s Industrial Area and was specifically designed as a creative steel and wood working furniture studio. With its unique use of slanted IBR sheeting this structure stands out from the rest by reflecting its creative interior function outwards. The building also accommodates offices and a furniture showroom.

YEAR

2018

LOCATION

Stanford, Western Cape

SHARE PROJECT
post image post image post image post image post image